2026.01.27
建築用語を解説します。
こんにちは、篭橋です。
家づくりをお考えの皆さん、建築図面をご覧になるとき、それぞれの 建築用語 が分からず戸惑ったことはありませんか。
私はあります(>_<)

今回は、建築図面でよく見る 「配置図(はいちず)」 と 「平面図(へいめんず)」 の建築用語について解説します。
これらの建築用語、皆さんは何を指しているかご存じでしょうか。
文字を見ただけでなんとなくイメージできる方もいらっしゃるかもしれませんが、一般的にはピンとこない方がほとんどです。
配置図と平面図の見方と、気をつけたいポイントについて説明します。
ご参考になさってください。

目次
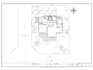
【配置図とは】
建物と立地の位置関係、道路、隣の立地、土地の高低差などがわかる図面で、敷地に対して建物や車庫、庭、フェンスなどがどこに配置されるかを示した建築図面のことです。
【配置図で分かること】
・住宅の建つ位置と道路と隣地との境界のスペース、隣の土地や道路境界線は問題ないか。
・駐車場と玄関の位置関係、住宅や立地、車の配置と広さと方位の確認。
・車の出入りをスムーズにできるか。
・採光・通風の条件、日当たりは大丈夫なのか。風の通る場所に住宅などがないのか。
・電気のメーター、水道の位置を確認する。
・防災や避難経路の確保
など、読み取ることができます。

【配置図で気を付けたいポイント】
車庫・駐車場
車庫や駐車場は、配置図を確認する際に多くの方が最初に気にする部分です。
車は停められればいい!と思って気にしないと、あとあと困ることがでてきますよ。
例えば
・ファミリーカーやミニバンは、横幅がある。
・高さが大きいため余裕のある駐車スペースが必要だった。
・スペースが狭くて車のドアを全開にできなく車から荷物の出し入れが大変だった。
・来客用の駐車スペースを考えていなかったので駐車できない。
・道路に出入りする際の見通しがあまりよくない。
交通量が多い道路など車の出入りしやすいようにしておくと安心です。
毎日のことですので、配置図で事前にシミュレーションしておくといいですよ。

道路との関係
住宅と道路の関係も配置図から確認できます。
・車庫からスムーズに出入りできるか。
・道路の幅や見通しは十分か。
・子どもが飛び出したりして危ないことがありませんか。
また、建築基準法で定められた 接道条件(道路幅・接道長さ) を満たしているかどうかの確認が必要になります。

玄関・勝手口
車庫と玄関の位置は、生活動線に直結します。
例えば、
・車を停めてから玄関まで距離があると、重い荷物を持って運ぶとき大変です。
・勝手口がある場合は「ごみを出しやすいか」「勝手口の近くに車庫があれば買い物の荷物をもってすぐに家に入れますね。
・雨が降っている場合でも車からすぐに家の中に入れるなど便利です。
また外からの視線が気にならないか」なども配置図で確認できます。
配置図を見ると生活動線がどれだけスムーズになるかを事前にイメージできます。

隣地との境界スペース
配置図の大切なひとつが 隣地との境界の確認です。
境界までのスペースに余裕があれば、
・外壁や雨樋のメンテナンスがしやすい。
・通風や採光が確保できる。
・火災時の延焼リスクを軽減できる。
といったメリットがあります。
逆に境界が狭いと、窓を開けにくかったり、隣家の生活音が気になったりすることもありますね。
配置図を見ながら「どのくらいの余裕があるのか」を意識したいですね。

生活スペース(ゴミ置き場・物置など)
配置図で確認できることで、ゴミ置き場・物置の位置も生活のしやすさに大きく関わります。
例えば、玄関や勝手口のすぐ横に、ゴミ置き場があると便利ですが隣家の出入口に近いとお互い気を使ってしまうことも。
朝、ゴミを出そうと家を出たら、ちょうどお隣の方も出てこられてバッタリ鉢合わせ、
そんな時、なんとなく気まずい思いをすることってありますよね。
配置図の段階で隣家の位置を考慮しながら計画することが大切です。

植栽やフェンスの配置
配置図は庭木やフェンス、花壇など外構の要素もあります。
植栽やフェンスは暮らしにゆとりを与えてくれますが、注意したいのは将来の植樹の成長です。
植えたときは小さな木でも数年で大きくなり、枝が隣地に越境してしまうこともあります。
配置図を見ながら「今だけでなく将来どうなるか」までシミュレーションして計画すると安心です。

採光・通風
快適な住まいに欠かせないのが 採光と通風 です。
リビングのように長い時間を過ごすスペースは、日当たりがいいから南側に配置する方が多いです。
冬は太陽の光で室内が明るく暖かく過ごせますが、その一方で、夏は日差しが強すぎて「暑くてリビングにいられない」と感じることもあります。
庇(ひさし)や窓の位置、通風などを工夫して、季節にかかわらず快適に暮らせるように考えることが大切です。
配置図で窓の位置と方角を確認し、
・隣家や塀で光や風が遮られないか。
・夏は風が抜けて冬は日差しを取り込めるか。
といった視点で確認しましょう。
快適な住宅にするのはどうしたらいいのかイメージすることが大切です。

防災
近年の住宅は、防災も大きなテーマになっています。
配置図で注意したいのは、
・隣家とのスペースで延焼のリスクを軽減できるか。
・地震時に避難経路を確保できるか。
・大雨や台風時に雨水の流れ・排水経路はどうか。
といった点です。
特に大雨による浸水や排水のしやすさは、敷地の勾配で決まるため、配置図で事前に確認しておくことをおすすめします。

将来の暮らしの変化
最後に忘れてはいけないのが 将来の暮らしの変化です。
・家族の人数が増えたり減ったりして増築・リフォームが必要になるかもしれません。
・今は隣地が空き地でも将来、建物が建つことがあるかもしれません。
(建物が建つと環境は大きく変わる可能性があります。その点も考慮しておくことが大切です。)
・季節ごとの日射や影の変化。
・後からウッドデッキや物置を追加したくなる。
こうした将来の可能性を見越して配置図をきちんと理解することは暮らしやすい住宅のために大切です。

配置図のまとめ
配置図は、単に「住宅がどこに建つか」を示すだけではありません。
車庫や玄関の位置、隣地との境界、採光・通風、防災、そして将来のライフスタイルまで左右する住宅の建築図面の基本です。
家づくりを進めるときには、自分自身でも配置図を見ながら「この生活動線で快適に暮らせるか」「将来も安心できるか」を考えることも大切です。

つまり配置図は、これからの暮らしの快適さをシミュレーションするための重要な建築図面なのです。
シンプルな建築図面ですが、暮らしの快適さ、安全性、将来のことなど大きな影響があります。
住んでから「スペースが狭くて車が停めづらい」「隣家の方の出入り口が玄関の近くにあって落ち着かない」「思ったより暗かった」など、配置図をないがしろにすると後悔することがあるかもしれません。
次に平面図(へいめんず)についてお話します。
住宅の建築図面の中でも、私を含め多くの人が気になると思うのが 平面図です。

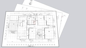
【平面図とは】
住宅を水平方向に輪切りにしたものを上から見たイメージ建築図面のことです。
住宅を各階ごとに真上から見た状態の建築図面になり、こちら間取り図とも呼ばれています。
各階ごとに作成され、住宅の1階・2階と階ごとにそれぞれにどのような部屋で、キッチン、トイレ、バス、階段、廊下、柱などの配置が示されており、面積はどのくらいか、窓や出入口の位置、壁の厚みまで表され住宅の概要がわかります。
【平面図で分かること】
一般的に平面図を見ることで、
・各部屋の名称(リビング、キッチン、寝室など)
・部屋の広さ(畳数や㎡表記)
・ドア・窓の位置と開閉方向
・階段・廊下などの位置
・設備(キッチン、浴室、トイレ、洗面台など)
・収納スペースの場所
など、読み取ることができます。
これらを見ることで、実際の暮らしがどのようになるのかを具体的にイメージできるようになります。
【平面図で気を付けたいポイント】

玄関
玄関は靴の収納は、もちろんですがベビーカーやゴルフバッグ、アウトドア用品など、外で使うものを収納できるシューズクロークや土間収納があると便利です。
また、玄関からリビングやキッチンへの動線も重要です。

キッチン・リビング・ダイニング
また、家族が使用することが多いキッチンとリビングのつながりも大切な要素です。
キッチンからリビングやダイニングが見渡せると家事をしながら家族と会話ができます。
また、買い物帰りにキッチンへ直行できる動線になっているかどうかも、家事同線の上での大切な機能になります。

主寝室・子供部屋
主寝室や子供部屋の大きさも各家庭でいろいろな考え方があります。
「部屋は寝るだけだから広くなくてよい」
「部屋で趣味に没頭したいからある程度の広さがほしい」
など生活スタイルによって決めましょう。
また、廊下の幅、トイレの広さ、扉の開閉とサイズの確認することも大切です。
水まわりの位置
トイレ・洗面所・浴室など水まわりの配置も平面図で確認しましょう。
水まわりはできるだけ近くにまとめることで、給排水設備の効率がよくなり、建築コストを抑えられます。
洗濯機、物干しスペースまでの動線が短いと家事効率が上がります。

階段の配置と安全性
平面図では階段の位置もチェックしたいポイントです。
全館空調の住宅や高断熱住宅では温度差の心配はほとんどありませんが、一般的性能の住宅ではリビング階段だと家族が顔を合わせやすい一方で、扉がない分、冷暖房効率が下がりやすいというデメリットがあります。
また、階段の勾配や手すりの有無は、小さなお子さまや高齢者がいる家庭では特に安全面で重要です。
採光と通風
平面図には窓の位置やサイズも記されています。
平面図を見てイメージをしてみましょう。
どの部屋にどれだけ光や風が入るのかを想像できます。
ただし、通風はアメダスでも風の流れが読めていません。
過度に期待し過ぎないように注意しましょう。
南向きの大きな窓は日照を確保できますが、西日が強すぎる部屋は夏に暑くなりがちになるかも。
配置図と合わせて平面図を見ることで、住宅全体の快適性を確認できます。

収納スペースの大きさと配置
収納スペースの場所は、とても重要です。
平面図を見ながら、生活動線に沿った場所に収納が配置されているかを確認してみましょう。
たとえば、家族が一番集まるリビングに意外と収納が少ない場合があります。
リビング収納があれば、常備薬やお子さまの学校関係の書類など、家族全員が把握して使うものをまとめて置くことができ、とても便利です。
また、持ち込む家具の置き場所も考慮する必要があります。

各部屋のクローゼットも便利ですが、最近は家族全員の衣類をまとめて管理できる ファミリークローゼット も人気です。
衣替えや整理がしやすく、洗濯物を干した後そのまま収納できるため、家事の負担を大きく減らすことができます。
このように、家庭のライフスタイルに合わせてどのような収納が必要かを考えることも大切です。

プライバシーの確保
平面図を見ると、来客動線と家族動線の違いがわかります。
たとえば、玄関からリビングを通らずにトイレや和室に行ける動線は、来客時に便利です。
といっても来客が少なくなっているというデータもあるので、生活スタイルによってはリビング経由の方が便利な場合もあります。
また、寝室や子ども部屋のドアが玄関から直接見えないように配置されていると、家族のプライバシーも守られます。

その他にも、平面図で確認しておきたいポイントとしては、
・コンセントの位置や照明のイメージ。(別に電灯コンセント図など専用の図面がある場合は平面図で確認しなくても大丈夫です)
・床下収納の位置。
・バルコニーの日当たりや視線の配慮。
などがあります。
すべての要望をかなえるのは難しいかもしれませんが、ベストな方法を選ぶうえで平面図はとても大切な建築図面です。

将来のライフスタイルへの対応
住宅は長く住むものです。
平面図を見るとき、家族の変化に対応できるか を考えましょう。
子どもが成長したときの個室の必要性、夫婦の高齢化による1階中心の生活への移行など、将来を見据えた間取りにできるのかも気にしましょう。

平面図での失敗例
実際に暮らしてみると、「こうすればよかった」と思うことは少なくありません。
このようなことがないよう、下記の失敗例を参考にしてください。
・リビングスペースは十分あったのに、収納を考えていなかったため、収納家具を置くと狭く感じる。
・ドア同士がぶつかる配置になっている。
・洗濯機と洗濯干し場の位置が離れているため、濡れて重い洗濯物を運ぶのが大変。
・窓の位置が悪く、隣家からの視線が気になる。
こうした失敗を防ぐためには、平面図で生活のシミュレーションとして読むことが大切です。
これらを踏まえて、チエックリストも作成しました。
ご参考になさってください。

平面図チエックリスト
✅ 玄関に十分な収納があるか。
✅ キッチンからリビング・ダイニングの見通しはどうか。
✅ 水まわりが近くにまとまっているか。
✅ 階段は安全で使いやすい位置か。
✅ 窓の配置は採光・通風に配慮されているか。
✅ 各部屋に適切な収納があるか。
✅ 来客時の動線と家族の動線が干渉しないか。
✅ 将来の暮らしの変化に対応できる間取りか。
平面図は、生活に直結する建築図面です。
間取りや動線をどのように考えるかで、毎日の快適さや家事の効率化など、家族の過ごしやすさがだんぜん変わります。

「配置図」が敷地と住宅の関係ならば、「平面図」は住宅の中の生活を具体的に表す建築図面です。
住み心地の良さに直結する建築図面も平面図になります。
配置図と平面図はあわせて読むと、敷地と住宅、そして室内のつながりがより理解しやすくなります。
どちらの建築図面にしても、自分たちの家族構成や暮らし方に合っているかを確認してみましょう。

見慣れていないと、わかりにくいかもしれませんが、住宅はこの図面をもとに建てられます。
実際に暮らしているつもりで、図面に必要な家具を書き入れ、どれくらいのスペースになるか確認してみてください。
住宅に携わる人間にとって建築図面は見ているだけでも、おもしろいものです。
建築図面を見ると、その人の個性や、どのような生活を望んでいるかもわかります。
基本の建築図面には、さまざまな建築用語があり図面ごとに役割も異なります。
建築用語がわかると、図面を見るのもさらに楽しくなりますよ。

家族みんなで建築図面を見ながら「あーでもない、こーでもない」と話し合ってみてください。
わからないことは、要望を整理したうえで、住宅を建ててもらう工務店さんに相談しながら進めることが大切です。
このとき、「配置図のここが気になります」など、建築用語を使って話すと、少しかっこよく見えると思います。
建築用語がわかると図面の見方が理解でき、住宅づくりがもっと楽しくなりますよ。



ワダハウジング和田製材株式会社
篭橋和子
