2025.10.13
住宅の設計図の用語を知ると家づくりに役立ちます

こんにちは、篭橋です。
住宅に携わる人間にとって、設計図はみているだけでおもしろいものです。
設計図をみるとその人の個性やどのような生活を望んでいるかわかります。
基本になる家の設計図にはいろいろな用語があり、役割も図面ごとに違ってきます。
今回は、基本中の基本!
「配置図」と「平面図」の住宅の設計図の用語と設計図の見方をお伝えします。
ご参考になさっていただけると嬉しいです。

目次
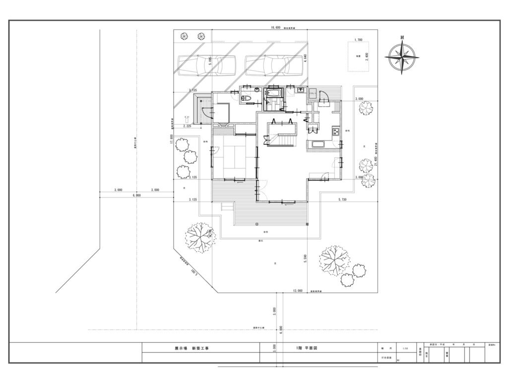
配置図(はいちず)とは
敷地に対して住宅や車庫、庭、フェンスなどがどこに配置されるかを示した設計図のこと です。

配置図の見方として
・住宅の建つ位置と道路との関係
・隣地との境界のスペース
・駐車場と玄関の位置関係
・採光・通風の条件
・防災や避難経路の確保
など、読み取ることができます。
つまり配置図は、これからの暮らしの快適さをシミュレーションするための重要な設計図なのです。
シンプルな図面ですが、暮らしの快適さ、安全性、将来のことなど大きな影響があります。
住んでから「スペースが狭くて車が停めづらい」「隣家の方の出入り口が玄関の近くにあって落ち着かない」「思ったより暗かった」など、配置図をないがしろにすると後悔することがあるかもしれません。

配置図で気を付けたいポイント
車庫・駐車場
車庫や駐車場は、配置図を確認する際に多くの方が最初に気にする部分です。
車は停められればいい!と思って気にしないと、あとあと困ることがでてきますよ。
例えば
・ファミリーカーやミニバンは、横幅・高さが大きいため余裕のある駐車スペースが必要だった。
・スペースが狭くて車のドアを全開にできなく車から荷物の出し入れが大変だった。
・来客用の駐車スペースを考えていなかったので駐車できない。
・道路に出入りする際の見通しがあまりよくない。
交通量が多い道路など車の出入りしやすいようにしておくと安心です。
毎日のことですので、配置図で事前にシミュレーションしておくといいですよ。

道路との関係
住宅と道路の関係も配置図から確認できます。
・車庫からスムーズに出入りできるか。
・道路の幅や見通しは十分か。
・子どもが飛び出したりして危ないことがありませんか。
また、建築基準法で定められた 接道条件(道路幅・接道長さ) を満たしているかどうかの確認が必要になります。
玄関・勝手口
車庫と玄関の位置は、生活動線に直結します。
例えば、
・車を停めてから玄関まで距離があると、重い荷物を持って運ぶとき大変です。
・勝手口がある場合は「ごみを出しやすいか」「勝手口の近くに車庫があれば買い物の荷物をもってすぐに家に入れますね。
・雨が降っている場合でも車からすぐに家の中に入れるなど便利です」「また外からの視線が気にならないか」なども配置図で確認できます。
配置図を見ると生活動線がどれだけスムーズになるかを事前にイメージできます。
隣地との境界スペース
配置図の大切なひとつが 隣地との境界の確認です。
境界までのスペースに余裕があれば、
・外壁や雨樋のメンテナンスがしやすい
・通風や採光が確保できる
・火災時の延焼リスクを軽減できる
といったメリットがあります。
逆に境界が狭いと、窓を開けにくかったり、隣家の生活音が気になったりすることも。
配置図を見ながら「どのくらいの余裕があるのか」を意識したいですね。

生活スペース(ゴミ置き場・物置など)
配置図で確認できることで、ごみ置き場や物置の位置も生活のしやすさに大きく関わります。
例えば、玄関や勝手口のすぐ横に、ごみ置き場があると便利ですが隣家の出入口に近いとお互い気を使ってしまうことも。
朝、ゴミを出そうと家を出たら、ちょうどお隣の方も出てこられてバッタリ鉢合わせ。
そんな時、なんとなく気まずい思いをすることってありますよね。
配置図の段階で隣家の位置を考慮しながら計画することが大切です。
植栽やフェンスの配置
配置図は庭木やフェンス、花壇など外構の要素もあります。
植栽やフェンスは暮らしにゆとりを与えてくれますが、注意したいのは将来の植樹の成長です。
植えたときは小さな木でも数年で大きくなり、枝が隣地に越境してしまうこともあります。
配置図を見ながら「今だけでなく将来どうなるか」までシミュレーションして計画すると安心です。

採光・通風
快適な住まいに欠かせないのが 採光と通風 です。
リビングのように長い時間を過ごす場所は、日当たりがいいから南側に配置する方が多いです。
冬は太陽の光で室内が明るく暖かく過ごせますが、その一方で、夏は日差しが強すぎて「暑くてリビングにいられない」と感じることもあります。
庇(ひさし)や窓の位置、通風などを工夫して、季節にかかわらず快適に暮らせるように考えることが大切です。
配置図で窓の位置と方角を確認し、
・隣家や塀で光や風が遮られないか。
・夏は風が抜けて冬は日差しを取り込めるか。
といった視点で確認しましょう。
快適な住宅にするのはどうしたらいいのかイメージすることが大切です。
防災
近年の住宅設計では、防災も大きなテーマになっています。
配置図で注意したいのは、
・隣家とのスペースが延焼のリスクを軽減できるか。
・地震時に避難経路を確保できるか。
・大雨や台風時に雨水の流れ・排水経路はどうか。
といった点です。
特に大雨による浸水や排水のしやすさは、敷地の勾配で決まるため、配置図で事前に確認しておくことをおすすめします。

将来の暮らしの変化
最後に忘れてはいけないのが 将来の暮らしの変化 です。
・家族が増えたり減ったりして増築・リフォームが必要になるかも。
・隣地は今は空き地でも将来、建物が建つことがあるかもしれません。(建物が建つと環境は大きく変わる可能性があります。その点も考慮しておくことが大切です。)
・季節ごとの日射や影の変化
・後からウッドデッキや物置を追加したくなる。
こうした将来の可能性を見越して配置図をきちんと理解することは暮らしやすい住宅のために大切です。

配置図のまとめ
配置図は、単に「住宅がどこに建つか」を示すだけではありません。
車庫や玄関の位置、隣地との境界、採光・通風、防災、そして将来のライフスタイルまで左右する住宅の設計図の基本です。
家づくりを進めるときには、自分自身でも配置図を見ながら「この生活動線で快適に暮らせるか」「将来も安心できるか」を考えることも大切です。
将来の不安なことも含めて住宅を建ててもらう工務店さんに相談しながら決めていくことが大切です。

「配置図」が敷地と住宅の関係ならば、「平面図」は住宅の中の生活を具体的に表す設計図です。
住み心地の良さに直結する図面が平面図になります。
次に平面図(へいめんず)についてお話します。
住宅の設計図の中でも、私を含め多くの人が気になると思うのが 平面図です。

平面図(へいめんず)とは
住宅を水平方向に輪切りにしたものを上から見た図面のことです。
住宅を各階ごとに真上から見た状態の図面になります。
こちら間取り図とも呼ばれています。
各階ごとに作成され、住宅の1階・2階それぞれにどのような部屋やキッチン、トイレ、バス、階段、廊下、柱などの配置が示されており、面積はどのくらいか、窓や出入口の位置、壁の厚みまで表され住宅の概要がわかります。

一般的に平面図を見ることで、
・各部屋の名称(リビング、キッチン、寝室など)
・部屋の広さ(畳数や㎡表記)
・ドア・窓の位置と開閉方向
・階段・廊下などの位置
・設備(キッチン、浴室、トイレ、洗面台など)
・収納スペースの場所
など、読み取ることができます。
これらを見ることで、実際の暮らしがどのようになるのかを具体的にイメージできるようになります。
平面図で気を付けたいポイントは
玄関の広さと収納の位置
靴はもちろん、ベビーカーやゴルフバッグ、アウトドア用品など、外で使うものを収納できるシューズクロークや土間収納があると便利です。
また、玄関からリビングやキッチンへの動線も重要です。
キッチンとリビングのつながり
家族が使用することが多いキッチンとリビング。
こちら平面図を見る上で大きなポイントの一つになります。
キッチンからリビングやダイニングが見渡せると家事をしながら家族と会話ができます。
また、買い物帰りにキッチンへ直行できる動線になっているかどうかも、家事同線の上での大切な機能になります。

水まわりの位置
トイレ・洗面所・浴室など水まわりの配置も平面図で確認しましょう。
水まわりはできるだけ近くにまとめることで、給排水設備の効率がよくなり、建築コストを抑えられます。
洗濯機、物干しスペースまでの動線が短いと家事効率が上がります。
階段の配置と安全性
平面図では階段の位置もチェックポイントです。
全空調の住宅は大丈夫ですが、リビング階段は家族が顔を合わせやすいが扉がない分、冷暖房効率が落ちやすいというデメリットもあります。
階段の勾配や手すりの有無も小さなお子さまや高齢者がいる家庭では特に安全面で重要になります。
採光と通風
平面図には窓の位置やサイズも記されています。
どの部屋にどれだけ光や風が入るのかを想像できます。
南向きの大きな窓は日照を確保できますが、西日が強すぎる部屋は夏に暑くなりがちになるかも。
配置図と合わせて平面図を見ることで、住宅全体の快適性を確認できます。

収納スペースの大きさと配置
収納スペースは、どこにあるか!がとても大切です。
平面図を見ながら、生活動線に沿った場所に収納が配置されているかを確認してみましょう。
たとえば、家族が一番集まると思われるリビングに意外と収納が少ない場合があります。
リビング収納があれば、たとえば常備薬、お子さまの学校関係の書類など、家族みんなが把握して使うものをまとめて置けて便利です。
各部屋に設けられたクローゼットはもちろん便利ですが、最近は家族全員の衣類をまとめて管理できる、ファミリークローゼットも人気です。
家族の衣類を一か所で把握できるため、衣替えや整理がしやすく、洗濯物を干したあとそのまま収納できるので家事がとても楽になると言われています。
このように家庭のライフスタイルに合わせて、どのような収納が必要かを考えてみることも大切です。

プライバシーの確保
平面図を見ると、来客動線と家族動線の違いがわかります。
例えば、玄関からリビングを通らずにトイレや和室に行けるかどうかは来客時に便利です。
また、寝室や子ども部屋のドアの位置が玄関から直接見えないように配置されていると、家族のプライバシーも守られます。
すべての要望をかなえるのは、難しいかもしれませんが、ベストな方法を選ぶうえで平面図は大切な図面になります。
将来のライフスタイルへの対応
住宅は長く住むものです。
平面図を見るときには、家族の変化に対応できるか を考えましょう。
子どもが成長したときの個室の必要性、夫婦の高齢化による1階中心の生活への移行など、将来を見据えた間取りになっているのも気にしましょう。

平面図での失敗例として
実際に暮らしてから「こうすればよかった」と思うことは少なくありません。
このようなことがないように下記の失敗例を参考にしてください。
・リビングスペースはあったのですが、収納を考えてなかったので収納の家具を置くと狭く感じる
・コンセントの配置が少なかったり、コンセントのあった場所に家具を置いたりして延長コードを使わざる得なくなりコードだらけになる
・ドアとドアがぶつかる配置になっている
・洗濯機と洗濯干し場の位置が離れていると、濡れて重たくなった洗濯物を持ち運ぶのが大変です。
・窓の位置が悪く、隣家からの視線が気になる
こうした失敗を防ぐためには、平面図を生活のシミュレーションとして読むことが大切です。
平面図チェックリスト
間取りの失敗を防ぐために平面図を見るときに役立つチェックリストです、ご参考にしてください。
✅ 玄関に十分な収納があるか。
✅ キッチンからリビング・ダイニングの見通しはどうか。
✅ 水まわりが近くにまとまっているか。
✅ 階段は安全で使いやすい位置か。
✅ 窓の配置は採光・通風に配慮されているか。
✅ 各部屋に適切な収納があるか。
✅ 来客時の動線と家族の動線が干渉しないか。
✅ 将来の暮らしの変化に対応できる間取りか。
いかがでしたか、平面図は、生活に直結する図面です。
間取りや動線をどのように考えるかで、毎日の快適さや家事の効率化など、家族の過ごしやすさがだんぜん変わります。

配置図と平面図はあわせて読むと、敷地と住宅、そして室内のつながりがより理解しやすくなります。
どちらの図面にしましても、自分たちの家族構成や暮らし方にあっているのか確認してみましょう。

家族みんなで「あーでもない、こーでもない」と話し合いながら、間取りを考えてみてください。
わからないことは要望を整理して、住宅を建ててもらう工務店さんに相談しながら進めていくことが大切です。
こうしたプロセスを踏むことで、満足できる住宅に近づいていくと思います。
図面の見方がわかるようになると、家づくりはもっと楽しくなりますよ。


ワダハウジング和田製材株式会社
篭橋和子
